Forum BMW Série 6 E24

630, 633, 628, 635, M635, Alpina B7 et B9, Hartge...
Nous sommes le 29 Avr 2026 20:13

Heures au format UTC + 1 heure [ Heure d’été ]




Poster un nouveau sujet Répondre au sujet  [ 4 messages ] 
Auteur Message
 Sujet du message: pb de démarrage
MessagePosté: 02 Oct 2016 17:58 
Hors ligne

Inscription: 02 Oct 2016
Messages: 2
Bonjour !
Je viens d'acquérir une BMW 635 CSI du 10/1980 à restaurer mais relativement en bon état par rapport à d'autres que j'ai vu.
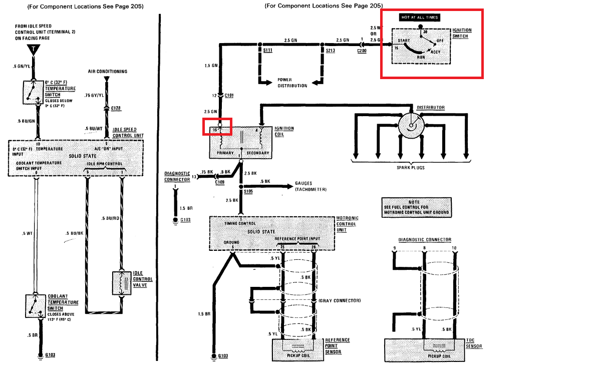
Pour l'instant, celle-ci ne démarre qu'en mettant un câble entre le + batterie et la borne 15 de la bobine.
Changement de la bobine, même problème.
Mesure sur la borne 15 : 4.82v !!
Mesure sur l'autre borne : idem
Vérification de tout le câblage, des fusibles, des relais :rien de flagrant hormis quelques cosses oxydées que j'ai refaite.
Lecture des forums, des aides, des schémas électriques. Mais je ne retrouve pas mon symptôme (où alors je ne comprends rien !!)
D'après ce que j'ai vu sur les schémas, le fils de la borne 15 vert est direct sur le calculateur (si j'ai bien compris !).
Est ce à dire que le calculateur est HS ?

Merci infiniment chers passionnés


Haut
 Profil  
 
 Sujet du message: Re: pb de démarrage
MessagePosté: 03 Oct 2016 12:25 
Hors ligne
Avatar de l’utilisateur

Inscription: 24 Fév 2014
Messages: 1159
Localisation: Val de Marne / Nürb
C'est quoi la borne 15 de la bobine? :? :saoul:


Edit :J'ai pas les schémas de phase 1, mais sur les schémas plus récent ca vient pas du calculo mais du neiman, boite à fusible, donc, depuis ton neiman. Regarde si ta la continuité depuis ton neiman à la borne 15, et si ta bien du jus au neiman.

_________________
Image


Dernière édition par Be_Fa le 03 Oct 2016 12:32, édité 1 fois.

Haut
 Profil  
 
 Sujet du message: Re: pb de démarrage
MessagePosté: 03 Oct 2016 12:30 
Hors ligne
Avatar de l’utilisateur

Inscription: 24 Fév 2014
Messages: 1159
Localisation: Val de Marne / Nürb
Fichier(s) joint(s):
Sans titre2.png
Sans titre2.png [ 228.08 Kio | Vu 2157 fois ]

_________________
Image


Haut
 Profil  
 
 Sujet du message: Re: pb de démarrage
MessagePosté: 03 Oct 2016 13:15 
Hors ligne

Inscription: 02 Oct 2016
Messages: 2
Bonjour BE-FA,

Merci pour cette réponse !
En effet, le fil vert (borne + de la bobine ) va au neiman comme tu le précises
Je vais le contrôler et je te donnerai le résultat

Merci encore !

Béhèmistement


Haut
 Profil  
 
Afficher les messages postés depuis:  Trier par  
Poster un nouveau sujet Répondre au sujet  [ 4 messages ] 

Heures au format UTC + 1 heure [ Heure d’été ]


Qui est en ligne

Utilisateurs parcourant ce forum: Bing [Bot] et 2 invités


Vous ne pouvez pas poster de nouveaux sujets
Vous ne pouvez pas répondre aux sujets
Vous ne pouvez pas éditer vos messages
Vous ne pouvez pas supprimer vos messages
Vous ne pouvez pas joindre des fichiers

Rechercher:
Aller à:  
Développé par phpBB® Forum Software © phpBB Group
Traduction par phpBB-fr.com